Pronájem věžových jeřábů
Společnost CRANESERVICE BRNO, s.r.o. nabízí k zapůjčení věžové jeřáby několika značek a zaměřuje se na pronájem jeřábu nejen na území České, ale i Slovenské republiky.
Naše služby nabízíme zcela komplexně, včetně dopravy, montáže a demontáže, revizí, školení, servisních prací a obsluhy stroje.
K jeřábům na přání dodáváme i rozmanité příslušenství, jakými jsou například antikolizní systémy, rádiová dálková ovládání, vázací prostředky, vysílačky, montážní koš, paletizační vidle, aj.
Na základě našich letitých zkušeností jsme schopni vyřešit i ty zdánlivě nejsložitější situace pro umístění jeřábu. Pro zpracování nezávazné cenové nabídky se na nás neváhejte obrátit.
Věžové jeřáby - samostavné

Peiner SMK 203
- max. nosnost: 3000kg
- délka ramene: 25m
- nosnost na konci ramene: 1050kg
Více informací

Liebherr 42K.1
- max. nosnost: 4000kg
- délka ramene: 36m
- nosnost na konci ramene: 1100kg
Více informací

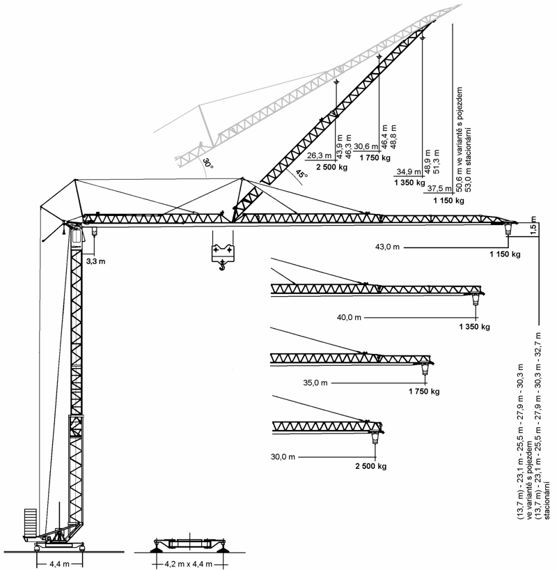
Liebherr 63K
- max. nosnost: 4000kg
- délka ramene: 43m
- nosnost na konci ramene: 1150kg
Více informací

Liebherr 71K
- max. nosnost: 6000kg
- délka ramene: 45m
- nosnost na konci ramene: 1200kg
Více informací

MB 1030.11/2
- max. nosnost: 6000kg
- délka ramene: 40m
- nosnost na konci ramene: 2000kg
Více informací

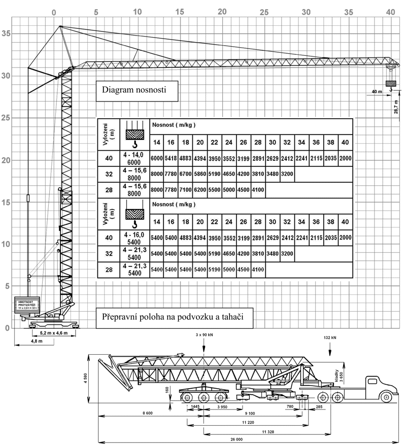
Potain GTMR 386
- max. nosnost: 8000kg
- délka ramene: 50m
- nosnost na konci ramene: 1300kg
Více informací
Věžové jeřáby - s horní otočí

MB 1043
- max. nosnost: 6000kg
- délka ramene: 50m
- nosnost na konci ramene: 2000kg
Více informací

MB 2043
- max. nosnost: 12000kg
- délka ramene: 56m
- nosnost na konci ramene: 1800kg
Více informací

SAEZ S 65 6T
- max. nosnost: 8000kg
- délka ramene: 65m
- nosnost na konci ramene: 1150kg
Více informací

SAEZ S 65 8T
- max. nosnost: 8000kg
- délka ramene: 65m
- nosnost na konci ramene: 1650kg
Více informací

SAEZ TL 50 5T
- max. nosnost: 5000kg
- délka ramene: 50m
- nosnost na konci ramene: 1100kg
Více informací

SAEZ TL 55 5T
- max. nosnost: 5000kg
- délka ramene: 55m
- nosnost na konci ramene: 1320kg
Více informací

SAEZ TL 55 6T
- max. nosnost: 6000kg
- délka ramene: 55m
- nosnost na konci ramene: 1320kg
Více informací

SAEZ TLS 60 14
- max. nosnost: 6000kg
- délka ramene: 60m
- nosnost na konci ramene: 1430kg
Více informací

SAEZ TLS 65 8T
- max. nosnost: 8000kg
- délka ramene: 65m
- nosnost na konci ramene: 1650kg
Více informací

SAEZ TLS 65 10T
- max. nosnost: 10000kg
- délka ramene: 65m
- nosnost na konci ramene: 2200kg
Více informací